Monolocale in vendita

Milano, Via Franchino Gaffurio - Vitruvio Settembrini
€ 265.000
1 locale 1 locale
43 Mq 43 Mq
1 bagno 1 bagno

Monolocale in vendita

Milano, Via Franchino Gaffurio - Vitruvio Settembrini

Descrizione annuncio

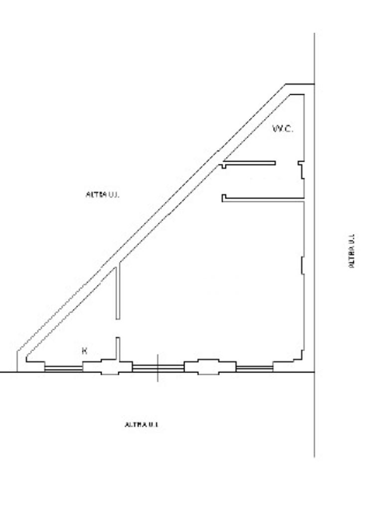
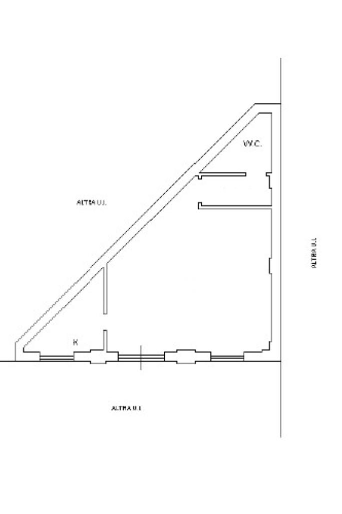
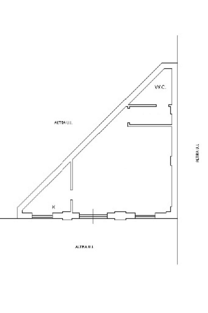
Nel cuore di Milano, nella rinomata zona di Piazza Caiazzo, si propone in vendita un monolocale di 43 mq.

Situato al piano terra di uno stabile d'epoca del 1930, l'immobile ha un ingresso indipendente nel cortile dell'edificio. La posizione strategica, a pochi passi dalla fermata della metropolitana Caiazzo, garantisce un facile accesso ai principali punti di interesse della città. L'appartamento è composto da un unico locale che funge da zona giorno e notte, un bagno e una cucina separata. Gli infissi interni nuovi assicurano un ottimo isolamento termico e acustico, migliorando il comfort abitativo. Vi è inoltre la possibilità di collegare l'immobile al tetto sovrastante di pertinenza che è piano e usufruire di uno spazio esterno invidiabile.

Questa soluzione rappresenta un'opportunità interessante per chi cerca un investimento sicuro nel mercato immobiliare milanese, grazie alla sua posizione centrale e alle caratteristiche uniche dell'edificio.

Mostra tutto

Nelle vicinanze

Trasporto pubblico Trasporto pubblico
Caiazzo
Caiazzo
90 m
Loreto
Loreto
410 m
Milano Centrale
Milano Centrale
470 m
Milano Porta Garibaldi superficie
Milano Porta Garibaldi superficie
1,8 Km
Caiazzo M2
Caiazzo M2
60 m
Ricariche auto elettriche Ricariche auto elettriche
A2A Isola Digitale Piazza Argentina
330 m
A2A Isola Digitale Stazione Centrale
410 m
Best Western Plus Hotel Galles
480 m
Parcheggio Via Manuzio
980 m
MACHIAVELLI PARKING
1,0 Km
Scuole Scuole
CFTA Milano
320 m
Istituto Gonzaga
440 m
Scuola Secondaria di Primo Grado Teodoro Ciresola
460 m
Liceo Classico Giosuè Carducci
490 m
Scuole
540 m
Farmacia Farmacia
Farmacia Caiazzo
50 m
Farmacia Scarlatti
190 m
Farmacia
250 m
Duca d'Aosta
380 m
Farmacia Vitruvio
380 m
Ospedali Ospedali
Istituto Clinico Città Studi
1,2 Km
Fatebenefratelli
1,6 Km
Istituto Neurologico Carlo Besta
1,8 Km
Istituto Villa Marelli
1,8 Km
Humanitas San Pio X
2,0 Km
Supermercati Supermercati
Punto Simply
130 m
Pam
370 m
Mix Markt
380 m
Picard
390 m
Il Semprevedere
500 m
Negozi Negozi
Asian African Market
90 m
Boner Bangla
110 m
Negozi
130 m
Panificio Piazza
160 m
Diffusione
200 m
Bar Bar
Mogamo
100 m
Art Factory
120 m
Carpe Diem
160 m
Bar Scarlatti
200 m
Bar Settembrini
270 m
Ristoranti Ristoranti
Pizzeria Gaffurio
0 m
Vizi e Sfizi
40 m
Da Sasà
40 m
Ristorante Chekiang
60 m
Noblesse Oblige
90 m
Mostra tutto

Caratteristiche

Rif.:
61105130
Piano:
1 di 1 (Piano terra)
Terrazzi:
1
Camere da letto:
1
Arredamento:
Assente
Condizionamento:
Assente
Mostra tutto
Prezzo Prezzo
€ 265.000
Rata mutuo Rata mutuo
€ 1.214 / mese
Spese annue Spese annue
€ 700
Proponi il tuo prezzoProponi il tuo prezzo

Classe Energetica

F
F
F
F
F
F
F
F
F
EP globale non rinnovabile:
105.63 kW h/m² anno
EP globale rinnovabile:
2.82 kW h/m² anno
EP invernale del fabbricato:
EP estiva del fabbricato:
Anno di costruzione:
1930
Riscaldamento:
Autonomo
Tipo impianto:
A radiatori
Tipo alimentazione:
Metano

Ti interessa visionare l'immobile?

Fissa un appuntamento  Fissa un appuntamento

Richiedi informazioni

* Questi campi sono obbligatori

Calcola il tuo mutuo

Semplice e senza impegno
Anticipo

( % )
Mutuo

( % )

pochi semplici passi

inserisci i tuoi dati
Questionario completato
Grazie per aver richiesto un appuntamento senza impegno con un nostro Consulente del Credito e Assicurativo.

Hai inserito correttamente tutti i dati necessari e a breve riceverai una e-mail con un link da convalidare per inviare i tuoi dati.
Affiliato
Domus 51 Srl
Via Fabio Filzi, 15 20123 Milano (MI)

Il nostro staff


  • Luca Bianchi
    Responsabile

  • Davide Felice
    Affiliato

  • Pietro Stabilini
    Collaboratore

  • Cesare Gianluca Risoluto
    Affiliato
Via Fabio Filzi, 15 20123 Milano (MI)
Zona: Centro Direzionale - Vittor Pisani
Mostra su mappa
Orari: 09:00 - 13:00 14:30 - 19:30 da Lun. a Ven 9:00 - 12:30 Sabato
Affiliato
Domus 51 Srl
Via Fabio Filzi, 15 20123 Milano (MI)

2025 Tecnocasa Franchising S.p.A. - P. IVA 08365160152 - Via Monte Bianco 60/A 20089 Rozzano (MI). Ogni agenzia ha un proprio titolare ed è autonoma. Privacy policy | Policy utilizzo | Cookie policy